苏州环新减振科技有限公司 环美牌减振降噪 隔振降噪工程 橡胶隔振垫 吊装减振器 浮筑结构隔振 管道减振降噪
设为首页
|
收藏本页
公司首页
关于我们
资质荣誉
产品展示
项目案例
新闻资讯
联系我们
公司首页
>>
产品展示
>>
浮筑结构橡胶隔振隔声垫
产品展示
设备基础隔振
设备吊装减振器
管道减振降噪、位移补偿产品
橡胶隔振器(垫)
浮筑结构橡胶隔振隔声垫
地址:江苏省苏州吴江区黎里镇临沪大道
3333号
电话:0512-63882838 / 0512-63882858
传真:0512-63887668
邮箱:shqphxjzq@vip.163.com
QQ:28675251
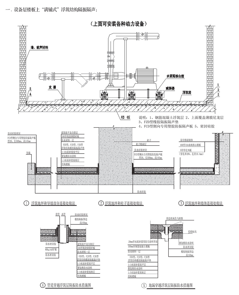
浮筑结构隔振隔声设计、应用实例、用户报告
声明:本公司保留变更产品设计恕不预先通知的权利,具体以实样为准。
环美牌减振降噪
隔振降噪工程
橡胶隔振垫
吊装减振器
浮筑结构隔振
管道减振降噪
下一篇:
上一篇:
FCD型侧向专用塑胶防振隔声板
相关产品
ZDA型阻尼弹簧减震器
ZD型阻尼弹簧复合减振器(拥有国家二项专利)
ZT型阻尼弹簧减振器
JZD型防剪切阻尼弹簧减振器(已获国家专利)
LZT型可调节水平弹簧减振器
DZA型、DZB型阻尼弹簧减振器
DZT型弹簧隔振器
HXQ、HMQ型可调节水平弹簧减振器
BYQ-SCB型干式变压器专用减振器
AT1、BT1、CT1、DT1型弹簧减振器
AT2、BT2、CT2、DT2型可调节水平弹簧减振器
AT3、BT3、CT3、DT3型可调节水平弹簧减振器
冷却塔振动噪声控制示例
本公司设计、制造的部分减振台座
AT4、BT4、CT4、DT4型吊架弹簧橡胶复合减振器
相关新闻
为你讲解关于汽车减震器的知识
电梯减震措施,电梯减振方法
减振器工作情况检查,需要注意这些事项
轨道交通常用减振降噪技术简述
我轨道交通减振降噪领域突破国外垄断
航空结构减振降噪技术研究